Eckdaten:
Adresse: Staudgasse 43 / 13, 1180 Wien, dritter Stock
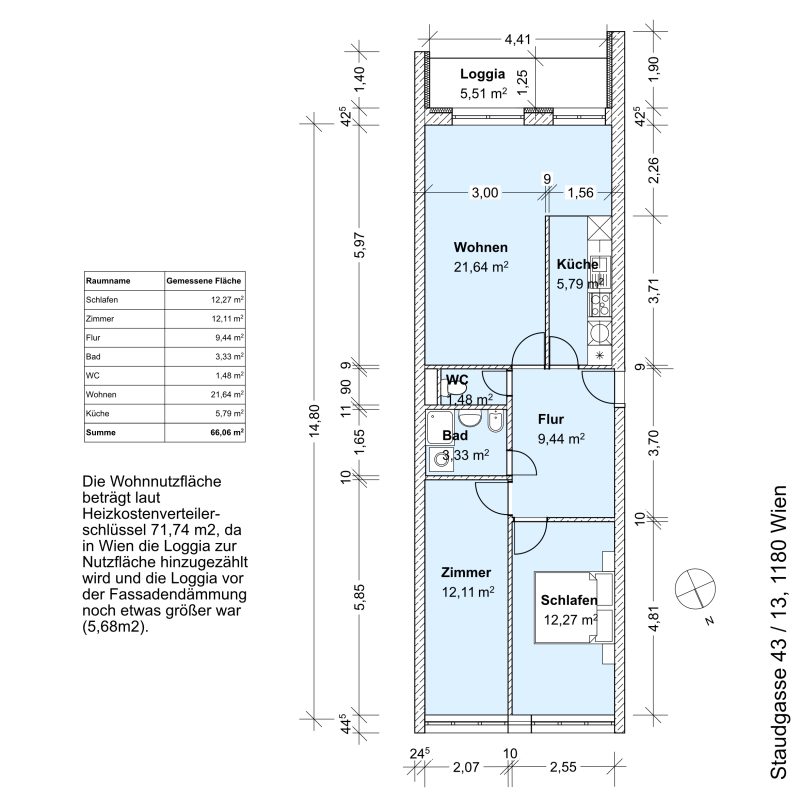
Wohnnutzfläche: 66 m2 plus Loggia 5,5 m2
Miete: € 1000,- / Monat
Kaution: 3 Monatsmieten
Heizung und Warmwasser in Miete inkludiert
Die Wohnung ist möbliert, Möbel können nach Absprache getauscht/entsorgt werden. (Waschmaschine und Küche vorhanden)
Dazugehöriges Kellerabteil vorhanden
Fahrradabstellraum kann mitgenutzt werden.
Die Lage ist ruhig und sehr gut erschlossen. Nahversorger (Hofer, Billa, Bio-Markt, dm, Post, Bauernmarkt etc.) in unmittelbarer Nähe.
Bei Interesse bitte mich zu kontaktieren:
DI Konrad Promitzer, Graz
+43 699 12042657
Email: office@kpdesign.at
Grundriss / Lage:


Fotogalerie:














